RESIDENZIALE BOLOGNA

Carpi (MO)
€ 287.000 - 490.000
3 - 4 Locali 3 - 4 Locali
105 - 200 Mq 105 - 200 Mq

RESIDENZIALE BOLOGNA

Carpi (MO)

Descrizione annuncio

CARPI VIA RENZO IMBENI – Nel cuore del quartiere Morbidina è in corso la costruzione una nuova palazzina dal design moderno costituita da 8 unità abitative servite da ascensore e con una consegna prevista per ottobre 2026. Precisamente la palazzina sarà edificata in via Renzo Imbeni, strada chiusa al traffico e servita da diversi parcheggi pubblici, soprattutto circondata da ampi spazi verdi attrezzati e ricca di piste ciclabili. Entro 500 metri sono disponibili supermercati, asilo e scuole primarie. La rete viaria principale è facilmente raggiungibile: difatti entro 1 km. si possono raggiungere velocemente le arterie sia verso Modena sia verso Reggio, ed entro i 2 km. il casello autostradale. La palazzina è stata progettata per garantire il massimo efficientamento energetico e il minor impatto ambientale, grazie anche l'utilizzo del prodotto YTONG, ovvero blocchi di calcestruzzo aerato autoclavato, un materiale totalmente naturale con tutte le caratteristiche richieste dal moderno concetto di costruzione efficiente. L'impianto in pompa di calore sarà del tipo centralizzato e gestirà la climatizzazione estiva e invernale a pavimento e l'impianto di deumidificazione. Rimarrà sempre autonomo l’uso e il consumo personale. Infissi in PVC, zanzariera e tapparella in alluminio automatizzate.
Mostra tutto
RESIDENZIALE BOLOGNA
CARPI VIA RENZO IMBENI – Nel cuore del quartiere Morbidina è in corso la costruzione una nuova palazzina dal design moderno costituita da 8 unità abitative servite da ascensore e con una consegna prevista per ottobre 2026. Precisamente la palazzina sarà edificata in via Renzo Imbeni, strada chiusa al traffico e servita da diversi parcheggi pubblici, soprattutto circondata da ampi spazi verdi attrezzati e ricca di piste ciclabili. Entro 500 metri sono disponibili supermercati, asilo e scuole primarie. La rete viaria principale è facilmente raggiungibile: difatti entro 1 km. si possono raggiungere velocemente le arterie sia verso Modena sia verso Reggio, ed entro i 2 km. il casello autostradale. La palazzina è stata progettata per garantire il massimo efficientamento energetico e il minor impatto ambientale, grazie anche l'utilizzo del prodotto YTONG, ovvero blocchi di calcestruzzo aerato autoclavato, un materiale totalmente naturale con tutte le caratteristiche richieste dal moderno concetto di costruzione efficiente. L'impianto in pompa di calore sarà del tipo centralizzato e gestirà la climatizzazione estiva e invernale a pavimento e l'impianto di deumidificazione. Rimarrà sempre autonomo l’uso e il consumo personale. Infissi in PVC, zanzariera e tapparella in alluminio automatizzate.

Tipologie e prezzi

3 locali
€287.000
105 - 200 Mq 105 mq
1 Piano
3 - 4 Locali 3 Locali
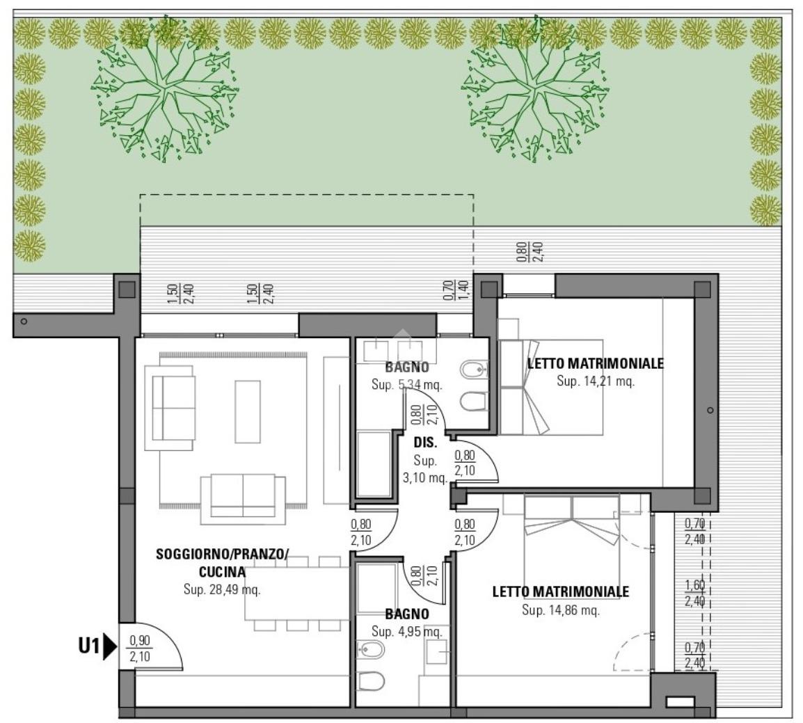
CARPI VIA RENZO IMBENI - La palazzina è edificata in via Renzo Imbeni, strada chiusa al traffico e servita da diversi parcheggi pubblici, soprattutto circondata da ampi spazi verdi attrezzati e ricca di piste ciclabili. Entro 500 metri sono disponibili supermercati, asilo e scuole primarie. La rete viaria principale è facilmente raggiungibile: difatti entro 1 km. si possono raggiungere velocemente le arterie per Modena e Reggio Emilia, ed entro i 2 km. il casello autostradale. La palazzina è stata progettata per garantire il massimo efficientamento energetico e il minor impatto ambientale, grazie anche l'utilizzo del prodotto YTONG, ovvero blocchi di calcestruzzo aerato autoclavato, un materiale totalmente naturale con tutte le caratteristiche richieste dal moderno concetto di costruzione efficiente. L'impianto in pompa di calore sarà del tipo centralizzato e gestirà la climatizzazione estiva e invernale a pavimento e l'impianto di deumidificazione. Rimarrà sempre autonomo l'uso e il consumo personale. Infissi in PVC, zanzariera e tapparella in alluminio automatizzate. La soluzione che qui presentiamo è posta al 1° piano e sviluppa una zona giorno open-space di circa 30 mq. che dispone di uno sfogo esterno su terrazzo di circa 15 mq. esposto a sud. Nel reparto notte sono presenti due camere da letto matrimoniali e due bagni completi di doccia, uno dei quali,  eventuale quello finestrato, è possibile renderlo privato a servizio di una camera. Completano questa proposta al piano terra il garage per un'auto e il posto auto privato scoperto ubicato all'interno della zona comune.
attico
€490.000
105 - 200 Mq 200 mq
2 Piano
3 - 4 Locali 4 Locali
CARPI VIA RENZO IMBENI - Precisamente la palazzina è edificata in via Renzo Imbeni, strada chiusa al traffico e servita da diversi parcheggi pubblici, soprattutto circondata da ampi spazi verdi attrezzati e ricca di piste ciclabili. Entro 500 metri sono disponibili supermercati, asilo e scuole primarie. La rete viaria principale è facilmente raggiungibile: difatti entro 1 km. si possono raggiungere velocemente le arterie dirette verso Modena e verso Reggio Emilia, ed entro i 2 km. il casello autostradale. La palazzina è progettata per garantire il massimo efficientamento energetico e il minor impatto ambientale, grazie anche l'utilizzo del prodotto YTONG, ovvero blocchi di calcestruzzo aerato autoclavato, un materiale totalmente naturale con tutte le caratteristiche richieste dal moderno concetto di costruzione efficiente. L'impianto in pompa di calore è del tipo centralizzato e gestisce la climatizzazione estiva e invernale a pavimento e l'impianto di deumidificazione. Rimane sempre autonomo l'uso e il consumo personale. Infissi in PVC, zanzariera e tapparella in alluminio automatizzate. La soluzione che qui presentiamo è la più prestigiosa della palazzina. Trattasi infatti di un attico posto al 2° e ultimo piano che sviluppa circa 115 mq. calpestabili dove eccelle la zona giorno open-space di circa 50 mq.. L'esclusività di questa soluzione è certamente l'importante terrazzo di circa 55 mq., in parte loggiato, che dispone di privacy e uno splendido affaccio sul verde. Le camere da letto sono tre e tutte matrimoniali. Anche i bagni sono tre: uno di servizio nella zona giorno e due nel reparto notte. Completano questa proposta al piano terra il garage per un'auto e il posto auto scoperto ubicato all'interno della zona comune.

Classe Energetica

A4
A4
A4
A4
A4
A4
A4
A4
A4

Ti interessa visionare l'immobile?

Fissa un appuntamento  Fissa un appuntamento

Richiedi informazioni

Clicca su Leggi per aprire l'informativa
* Questi campi sono obbligatori
Affiliato
Studio Carpiquattro Srl
Viale Cattani Sud, 9 41012 Carpi (MO)

Il nostro staff


  • Marco Cotugno
    Affiliato

  • Marco Belinelli
    Affiliato

  • Anna Pedrielli
    Collaboratrice

  • Alessandro Marcellini
    Responsabile

  • Italo Finno
    Collaboratore
Viale Cattani Sud, 9 41012 Carpi (MO)
Zona: Carpi Sud-Bollitora-Gargallo-Santa Croce-Morbidina-Acquedotto
Mostra su mappa
Orari: Dal Lunedì a Venerdì dalle 9.00 - 13.00 / 15.00 - 20.00. Il sabato dalle 9.00 alle 13.00, il pomeriggio su appuntamento
Affiliato
Studio Carpiquattro Srl
Viale Cattani Sud, 9 41012 Carpi (MO)

2026 Tecnocasa Franchising S.p.A. - P. IVA 08365160152 - Via Monte Bianco 60/A 20089 Rozzano (MI). Ogni agenzia ha un proprio titolare ed è autonoma. Privacy policy | Policy utilizzo | Cookie policy